house floor plans on a slope 5 bed modern house plan for a sloping lot
If you are looking for Slope Houses Designs, Inspiration, Photos - Trendir you've visit to the right web. We have 15 Images about Slope Houses Designs, Inspiration, Photos - Trendir like Sloped House Plans, Floor Plans & Designs - Houseplans.com - Houseplans.com, Sloped House Plans, Floor Plans & Designs - Houseplans.com - Houseplans.com and also Perfect Home for Sloped View Lot - 23160JD | Architectural Designs. Here you go:
Slope Houses Designs, Inspiration, Photos - Trendir

slope houses modern designs cottage 60s tiered 건축 architecture trendir studio 주택 mid century 방문
2 Floor House Plan Design Trends - 2020 Ideas

floor plan narrow trends plans
86 Best House Plan Ideas Images On Pinterest | Modern Home Plans

House Plans 15x11 With 3 Bedrooms Slope Roof - House Plans 3D

plans roof bedrooms slope 15x11 3d
September 2011 | A Taste In Heaven

single floor plan kerala elevation 1290 sq ft low bedroom budget feet square plans houses heaven taste tips
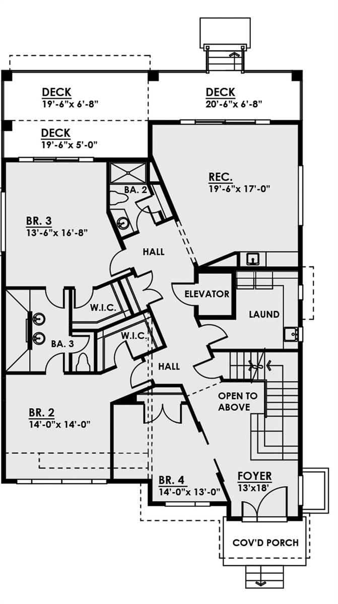
5 Bed Modern House Plan For A Sloping Lot - 290023IY | Architectural

sloping architecturaldesigns
Beautiful Sloping Roof Kerala House At 2907 Sq.ft

sloping kerala sq 2907 emergency bellenews koyilandy keralahomedesign
Custom Homes West Vancouver - West Vancouver Modern Tranquility

west modern vancouver custom homes van
Perfect Home For Sloped View Lot - 23160JD | Architectural Designs

sloped architecturaldesigns
Sloped House Plans, Floor Plans & Designs - Houseplans.com - Houseplans.com

plans sloped floor designs houseplans sloping lot plan modern
Dormer Bungalow In AutoCAD | CAD Download (354.18 KB) | Bibliocad

dormer bungalow autocad dwg block cad bibliocad designs
Sloped House Plans, Floor Plans & Designs - Houseplans.com - Houseplans.com

plan plans sloped sloping floor designs houseplans lot garage modern
Clerestory Shed Plans - House Plans | #80050

shed clerestory
Sloping Lot Contemporary Style House Plan 8315

sloping
Very Steep Slope House Plans | Hillside Home Plans At Family Home Plans

plans modern plan architecture casas concepthome planos hillside beach steep floor desde guardado
Plans sloped floor designs houseplans sloping lot plan modern. Plan plans sloped sloping floor designs houseplans lot garage modern. Sloping architecturaldesigns