floor plans house Pool swimming contemporary pools designs cottesloe deck renovation kayu modern area unbelievable days summer teak genuine tempting perth floor houzz
If you are searching about The Finalized House Floor Plan (Plus Some Random Plans And Ideas!) you've visit to the right place. We have 15 Pics about The Finalized House Floor Plan (Plus Some Random Plans And Ideas!) like 5-Bedroom Two-Story Mediterranean Home (Floor Plan) | Mansion floor, Floor Plan of House and also 5-Bedroom Two-Story Mediterranean Home (Floor Plan) | Mansion floor. Here you go:
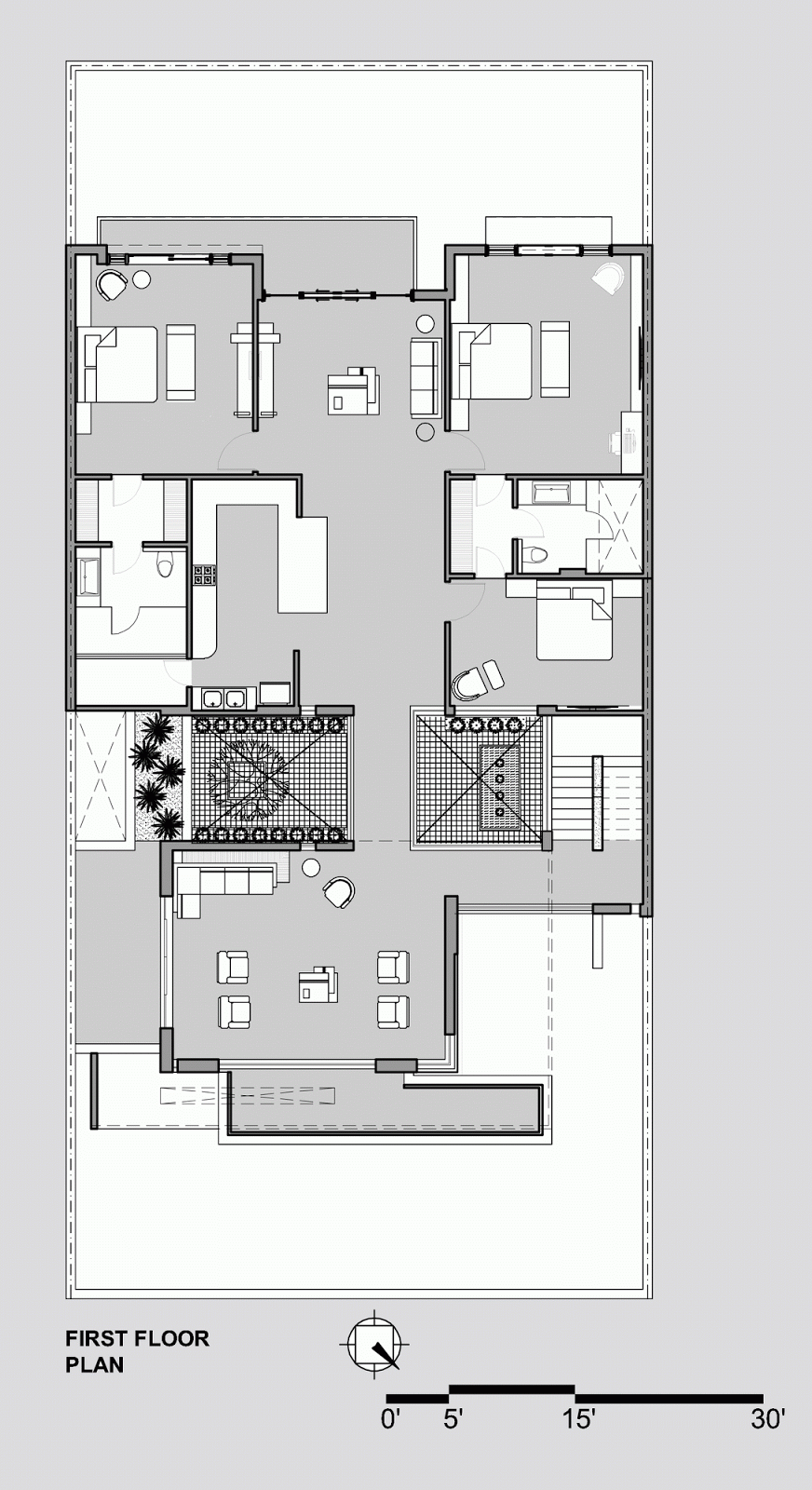
The Finalized House Floor Plan (Plus Some Random Plans And Ideas!)

gempa denah ciri dekoruma kenali perencanaan finalized sederhana struktur gedung sloof contoh randomness guessing addicted2decorating input homex bariel trials
10 Inspiring And Mind Blowing Designs Of Houses - Kerala Home Design

floor courtyard twin voids plans plan charged designs houses archdaily kerala blowing mind inspiring residential courtyards elevations homes india
Keep Cool House Designs: 18 Be Ventilated And Fresh Plans | Freshnist

ventilated freshnist
House Plans, Home Plans And Floor Plans From Ultimate Plans
floor plans plan level main
OPEN Architecture: A Prototype Of The HEXSYS System In Guangzhou China

architecture open system hex sys construction building china guangzhou prototype modular develops reconfigurable buildings dezeen hexagonal hexagons floornature structure archinect
House Plans, Home Plans And Floor Plans From Ultimate Plans
plans floor shaped homes houses plan southern level main dream
One Structural Element Often Found In Barndominiums Is Lofts. Existing

building existing barn
Post Modern House Plans 2021 - Hotelsrem.com

hotelsrem
5-Bedroom Two-Story Mediterranean Home (Floor Plan) | Mansion Floor

Interiors | Yellowstone Log Homes

interiors log homes yellowstone cabin interior cabins walls unique decorating designs visit living things
DIY Crafts - Rustic Triple X Bookshelf- Ana White Designs DIY Furniture

diy rustic plans furniture bookshelf ana triple designs crafts listspirit
House Plans, Home Plans And Floor Plans From Ultimate Plans
floor plan level plans main
15 Tempting Contemporary Swimming Pool Designs

pool swimming contemporary pools designs cottesloe deck renovation kayu modern area unbelievable days summer teak genuine tempting perth floor houzz
House Floor Plans On Pinterest | 3151 Pins
dreamhomesource
Floor Plan Of House
Floor plan of house. Plans floor shaped homes houses plan southern level main dream. One structural element often found in barndominiums is lofts. existing